LAVASTOVIGLIE PER IL SETTORE NAVALE DV 270.2
Questa lavastoviglie universale ha il vantaggio di uno spazio molto ampio di passaggio, trovandosi a un'altezza di 650 mm, e può gestire tutti i tipi di stoviglie presenti nella vostra cambusa, anche quelli più ingombranti.

Vantaggi:
- Caricamento semplice grazie all'altezza di 650 mm che permette di passare sotto
- Le tavole scorrevoli mantengono i tempi di inattività al minimo
- Risultati di lavaggio eccellenti con minimo utilizzo di acqua, energia e prodotti chimici
- Il doppio filtraggio dell'acqua di lavaggio rimuove i residui di cibo e migliora l'efficienza di lavaggio
- Bracci di lavaggio oscillanti per una copertura completa delle stoviglie
- Semplicità di pulizia grazie allo spazio di 150 mm dal pavimento
- Prodotta secondo i più recenti standard USPHS
- Testata e certificata NSF/ ANSI 3

LAVASTOVIGLIE PER IL SETTORE NAVALE DV 270.2 PER NAVI DA CROCIERA
Questa versatile lavastoviglie gestisce senza alcun problema pentole, padelle, utensili da cucina, contenitori di tutte le dimensioni e qualsiasi altra stoviglia difficile da lavare. La lavastoviglie per il settore navale DV 270.2 è dotata di pompe dinamiche ad elevate prestazioni, bracci di lavaggio oscillanti superiore ed inferiore in acciaio inox e di un design funzionale e una costruzione solida. Combinata con tavole di caricamento e scaricamento opzionali, la vasca di lavaggio con doppio isolamento crea una postazione di lavoro appropriata dal punto di vista ergonomico. Tutte queste caratteristiche e tutti questi vantaggi garantiscono lavaggi veloci ed efficienti nel retrocucina della vostra nave da crociera.
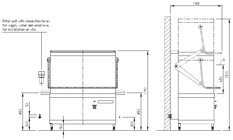
MISURE
Macchina disponibile anche con procedura con riscaldamento a vapore.
LAVASTOVIGLIE PER IL SETTORE NAVALE DV 270.2 PER OFFSHORE E TRAGHETTI
La lavastoviglie per il settore navale DV 270.2 lavora velocemente, svolgendo compiti che le normali lavastoviglie affrontano con difficoltà. In questo modo tutto funziona meglio nell'area di lavaggio della cambusa. Il riscaldatore integrato con pompa potenziata per il risciacquo garantisce una pressione e una temperatura costanti per il risciacquo finale e quindi risultati sempre perfetti. Al tempo stesso, le pompe di lavaggio ad avvio dolce impediscono che le stoviglie fragili si rompano o si scheggino. Le tavole scorrevoli riducono al minimo i tempi di inattività, mentre il personale del retrocucina lavora in condizioni ergonomiche eccellenti e con maggior piacere. Una lavastoviglie per il settore navale ideata per ambienti che necessitano di prestazioni elevate su traghetti e postazioni offshore.
MISURE
Macchina disponibile anche con procedura con riscaldamento a vapore.
* Se l'apparecchio è collegato all'alimentazione dell'acqua fredda e / o se il tempo di sostituzione del cestello è breve, si può prolungare il tempo necessario per raggiungere temperature igieniche di risciacquo.
Le linee dei prodotti e le loro configurazioni possono variare da un paese all'altro a causa dei requisiti di legge o per altri motivi. Vi preghiamo di rivolgervi a noi per eventuali chiarimenti. Saremo felici di aiutarvi a trovare una soluzione in linea con i vostri requisiti specifici.
Data: 03.2017. Con riserva di modifiche tecniche.


